Shonar M, Li D, Chalivendra V. Mode-I and mixed-mode fracture behavior of stitch polymer-induced hydrogel-hydrogel interfacial topohesion[J]. Engineering Fracture Mechanics, 2025: 111430.
Shonar, Mohammed, Dapeng Li, and Vijaya Chalivendra. "Mode-I and mixed-mode fracture behavior of stitch polymer-induced hydrogel-hydrogel interfacial topohesion." Engineering Fracture Mechanics (2025): 111430.
Shonar, M., Li, D., & Chalivendra, V. (2025). Mode-I and mixed-mode fracture behavior of stitch polymer-induced hydrogel-hydrogel interfacial topohesion. Engineering Fracture Mechanics, 111430.
背景简介
水凝胶是一种富含水的三维聚合物网络,因其独特的生物相容性、可调的物理化学性质以及与生物软组织相似的力学性能,在生物医学领域展现出巨大的应用潜力,例如作为伤口敷料、药物递送载体、组织工程支架以及可穿戴电子设备的基体等。在许多此类应用中,水凝胶需要与生物组织或其他水凝胶材料实现牢固、可靠的粘合。因此,水凝胶界面粘附的强度和韧性成为决定其应用成败的关键力学性能指标。目前,评估软材料界面粘附强度最常用的方法是剥离测试(如90°或180°剥离测试)。然而,这类方法存在一个根本性的局限:所测得的“韧性”是界面真实断裂能与水凝胶基体在剥离过程中发生大变形所耗散能量的总和。对于水凝胶这类极易变形的软材料而言,基体耗散的能量往往远大于界面本征的断裂能,从而导致对界面韧性的严重高估。因此,开发能够直接、准确测量软-软界面本征断裂韧性的实验方法,是当前软材料力学领域一个亟待解决的重要挑战。
成果介绍
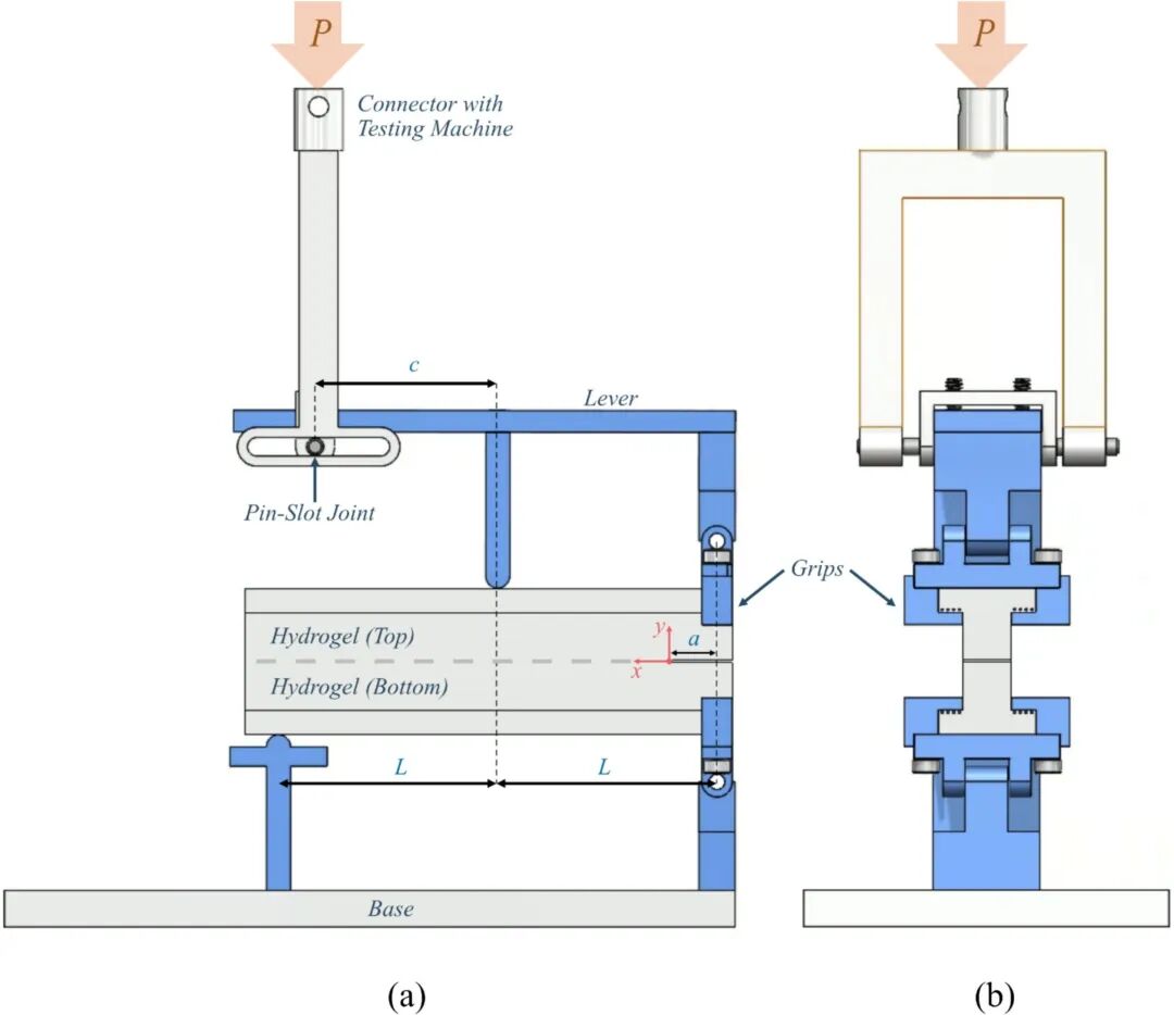
(1)设计并制备了具有T形横截面的淀粉增强聚丙烯酰胺水凝胶基体。通过在不同分子量(1.5, 15, 120, 250, 343 kDa)和不同pH值(2.5, 3.5, 4.5)的壳聚糖溶液作用下,将两个T形基体粘接,形成用于界面断裂测试的试样。针对水凝胶质软、易变形的特点,研究团队自主设计了轻质、高刚度的3D打印测试夹具,分别用于实现纯张开(I型)和拉-弯组合(混合型)的加载条件,成功避免了传统方法中因基体过大变形带来的测量误差(图1、图2)。
.png)
图1 模式I测试夹具设计示意图:(a)正视图;(b)侧视图;(c)带测试参数的裂纹尖端;(d)测试过程中双T形试件沿界面开裂的代表性照片
.png)
图2 混合模式测试夹具设计示意图:(a)正面视图与(b)侧面视图
(2)通过J积分计算的断裂韧性结果表明,壳聚糖作为缝合聚合物能极大提升界面韧性,且其效果强烈依赖于分子量和pH值。与未使用壳聚糖的对照组相比,高分子量壳聚糖(343 kDa)在pH 4.5条件下,能使I型断裂韧性提升约200%,混合模式(I/II)韧性提升约65%。而低分子量(1.5 kDa)壳聚糖的作用与对照组无异,表明长分子链对形成强韧的界面拓扑网络至关重要。对于高效的343 kDa壳聚糖,降低溶液pH值会削弱其增韧效果。当pH从4.5降至2.5时,I型韧性显著下降,混合模式韧性甚至降至与对照组相当的水平。这表明壳聚糖在接近中性条件下才能形成最佳的氢键网络(图3)。
.png)
图3(a)控制组与施加不同分子量壳聚糖溶液试样的载荷-位移曲线(实线表示平均值,阴影区域表示95%置信区间),菱形标记点指示典型裂纹萌生位置,菱形标记指示典型的裂纹萌生;(b)对照组及涂覆不同分子量壳聚糖溶液试样的J-积分断裂萌生韧性值;(c)在三个不同pH值下,涂覆375 kDa壳聚糖溶液的水凝胶试样的力-位移曲线;(d)在三个不同pH值下,涂覆375 kDa壳聚糖溶液试样的J-积分断裂萌生韧性值
(3)利用数字图像相关技术对裂纹尖端应变场进行原位分析,揭示了韧性增强的微观机制。对于I型加载,在高分子量壳聚糖样本中,裂纹尖端出现明显的钝化现象,导致张开应变显著增大和应力集中缓解,需要更多能量才能驱动裂纹扩展。而在对照组和低分子量样本中,裂纹尖端保持尖锐。(图4)对于混合型加载,裂纹尖端钝化现象消失。剪切应变沿界面分布,而非集中在尖端,表明剪切应力更容易破坏壳聚糖缝合网络。这解释了为何混合模式下的韧性始终低于纯I型加载(图5)。
.png)
图4(a)裂纹萌生时沿界面应变分布(∊y)-对照组与涂覆不同分子量壳聚糖溶液试样的对比;(b)沿界面方向的应变分布曲线,参照插图中所示的坐标轴;(c)对照组与涂覆不同分子量壳聚糖溶液试样的裂纹扩展阻力曲线,以及显示两种典型裂纹扩展模式的DIC图像
.png)
图5 裂纹萌生时(a)正应变与(b)剪切应变分布沿界面在混合模式下的分布情况,适用于对照组及在裂尖处施加不同分子量壳聚糖溶液的试样;不同分子量壳聚糖在裂纹萌生阶段承受混合模式载荷时的(c)正应变分布和(d)剪切应变分布
致谢
本研究由美国马萨诸塞大学达特茅斯分校机械工程系与生物工程系合作完成。研究获得相关基金支持。本文第一作者:Mohammed Shonar(University of Massachusetts Dartmouth),本文通讯作者:Vijaya Chalivendra(University of Massachusetts Dartmouth)。
本期小编 沈文顺(整理)
董乃健(校对)
程 航(审核)
董乃健(发布)
|